椒江房地产网 > 椒江二手房
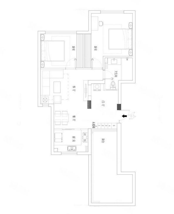
    锦江百货蓝庭花园小高层2室1厅1卫89㎡
    2022/11/15 8:20:11
  • 建筑面积:
  • 89㎡
  • 户型:2室1厅1卫
  • 房产类型:
  • 小高层
  • 朝向:南
  • 总 层 次:
  • 7层
  • 层次:中层
  • 建造时间:
  • 2013年竣工
  • 装修:简单装修
  • 土地性质:
  • 商品房,70年产权
  • 证件:满五年
  • 占地面积:
  • 待测量
  • 车库:待查待测
  • 所属小学:
  • 未知
  • 中学:未知
  • 方位:
  • 锦江百货
  • 地址:
  • 未登记
    配套设施

物业类型:普通住宅

    周边环境

暂无介绍

    详细描述

联系方式:房金眼房产经纪学府店卢敦琴,13736572266,1、交通很方便
业主很信任我,我能了解业主卖房新的动态。目前市场交易量平稳,政策已经基本稳定,是市场触底入手的好时候。请不要错过性价比高的好房。

(联系时请说明来自《椒江房地产网》

    同区位房
    同价位房
    精彩推荐
关于我们 | 免责声明 | 房产视频 | 联系我们 | 后台登陆
Copyright © 2021 椒江房地产网·浙ICP备08010913号-1 All Rights Reserved
版权所有:台州嘉豪传媒广告有限公司